Cerco un immobile da

Appartamento in Vendita a Lecce - via Rapallo

Descrizione immobile

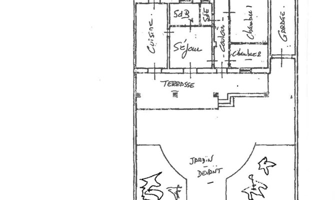
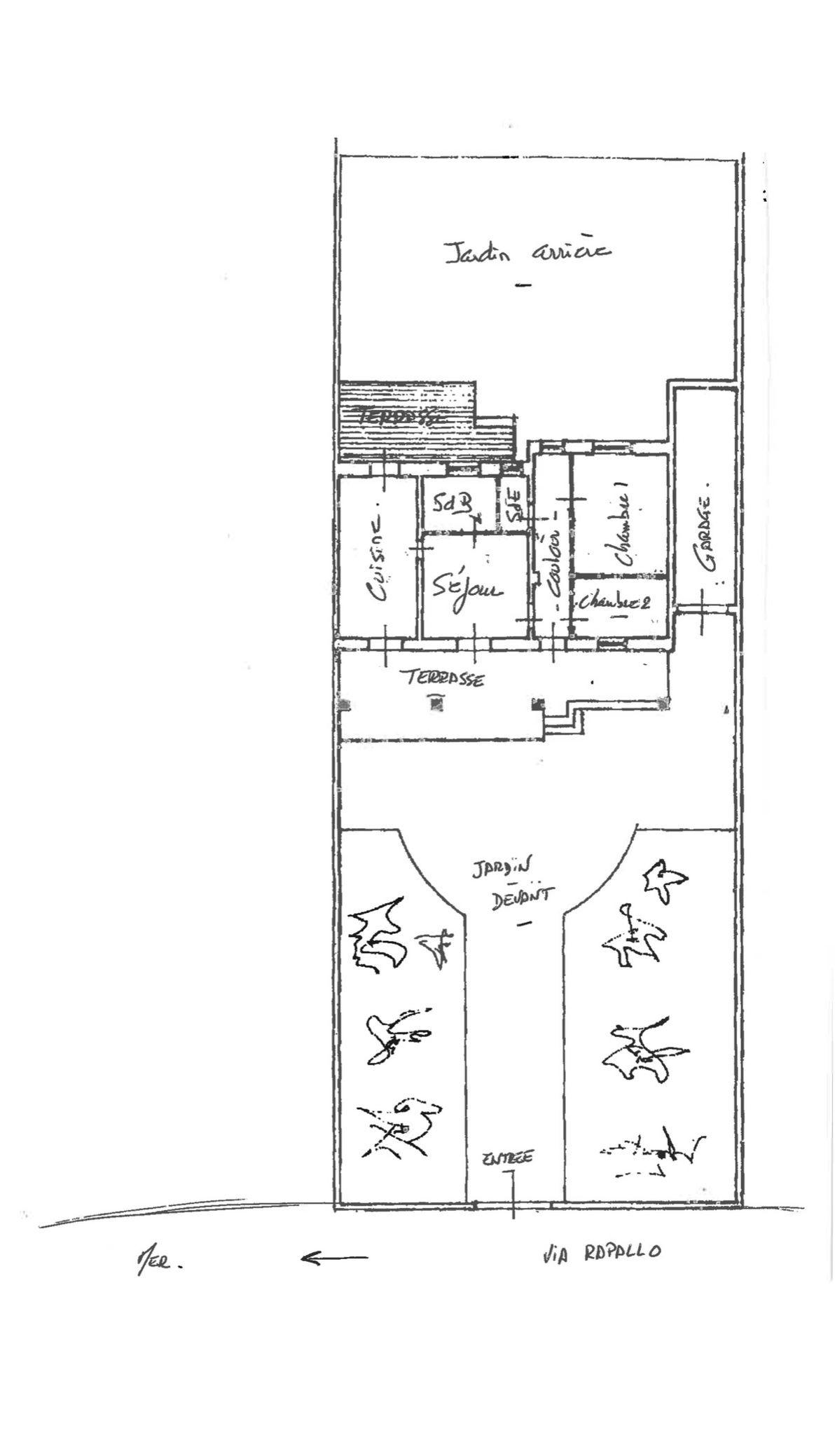
Appartamento di sei vani in ottimo stato, con ingresso indipendente e posto al piano rialzato di un edificio costruito nel 1960 e ristrutturato nel 2016. La proprietà si estende su una superficie di 125 metri quadrati e gode di zero spese condominiali mensili. Questa casa, situata nella zona di Torre Rinalda a Lecce, è perfetta per chi cerca un alloggio ben curato e con un ottimo rapporto qualità-prezzo. Prezzo: 138.000 Euro.A 50 metri dal mare, il privilegio di vivere Spiaggiabella

Immagina di uscire di casa e raggiungere il mare in pochi passi, sentendo il profumo della salsedine e il suono delle onde come colonna sonora delle tue giornate.
A Spiaggiabella, Marina di Lecce, proponiamo in vendita una villetta indipendente che racchiude il perfetto equilibrio tra mare, privacy e spazi da vivere.
La proprietà è circondata da un giardino privato di circa 500 mq, un’oasi verde pensata per ogni momento della giornata: una zona pavimentata, comoda anche per il parcheggio, e una parte più naturale con alberi da frutto, angoli ombreggiati e una vera zona relax, ideale per leggere, pranzare all’aperto o godersi le serate estive. La presenza di una doccia esterna e di due verande rende l’esperienza all’aperto ancora più piacevole e funzionale.
L’abitazione, di circa 125 mq, accoglie con ambienti luminosi e ben distribuiti:
un soggiorno conviviale, una cucina abitabile perfetta per la vita quotidiana, due camere da letto e due bagni, pensati per il comfort della famiglia e degli ospiti.
Completa la proprietà un garage di circa 20 mq.
La villetta si presenta in buone condizioni generali ed è venduta completa di arredi, pronta per essere vissuta fin da subito.
Una casa dove il mare diventa parte della vita quotidiana, ideale come residenza estiva, casa per le vacanze o investimento di valore nel tempo.

Dettagli struttura (15SA)

In vendita

Prezzo richiesto
€ 138.000

Classe energetica   In fase di rilascio

125 mq

2 bagni

Garage

Laboratorio Immobiliare

Immobile proposto da
Laboratorio Immobiliare Lecce
N° REA: LE-301318
Via Oberdan 80/B
73100 - Lecce (LE)

Nome

Cognome

E-mail

Telefono

Messaggio

Accetta l'Informativa sul trattamento dei dati

Condividi l'immobile