Cerco un immobile da

Appartamento in Vendita a Lequile - via lecce

Descrizione immobile

In vendita splendido appartamento a Lequile, in provincia di Lecce. Questo immobile, situato al primo piano, offre una superficie di 200 mq distribuiti in 85 locali, garantendo ampi spazi e comfort. Lo stato dell'appartamento è buono, pronto per accogliere la tua famiglia o per essere un ottimo investimento. Non ci sono spese condominiali mensili, il che rende la gestione delle spese più semplice e conveniente. Prezzo di vendita: 125.000 Euro. [Classe energetica: G]A Lequile, lungo l’asse principale di via Lecce, proponiamo una soluzione abitativa che combina ampi spazi, privacy e un potenziale raro da trovare.

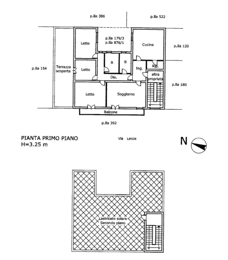
L’immobile occupa l’intero primo ed ultimo piano di un piccolo fabbricato composto da sole due unità, garanzia di tranquillità e indipendenza.

I circa 150 mq interni sono distribuiti con razionalità: un soggiorno luminoso con affaccio sul balcone principale, una cucina abitabile dotata di comoda dispensa, tre camere da letto ben proporzionate e due bagni finestrati di ampia metratura. Ambienti funzionali, già confortevoli, che si prestano a essere reinterpretati con interventi di riammodernamento mirati.
Il vero valore aggiunto di questa proprietà è però all’esterno.

Il terrazzo a livello di 50 mq crea una naturale estensione della zona giorno, mentre l’area solare esclusiva di ulteriori 150 mq apre la strada a possibilità concrete: dalla realizzazione di un solarium privato all’installazione di pannelli solari o di un impianto fotovoltaico, un investimento intelligente in termini di efficienza energetica e sostenibilità. A completare la proposta, un ampio box di 50 mq al piano terra, ideale per auto, attrezzature o come spazio multifunzionale.

La posizione, strategica e ben collegata con Lecce, rende questa soluzione una scelta intelligente per chi vuole spazio, indipendenza e con margini di valorizzazione nel tempo.

Dettagli struttura (05SA)

In vendita

Prezzo richiesto
€ 125.000

Classe energetica   G

200 mq

2 bagni

Garage

Laboratorio Immobiliare

Immobile proposto da
Laboratorio Immobiliare Lecce
N° REA: LE-301318
Via Oberdan 80/B
73100 - Lecce (LE)

Nome

Cognome

E-mail

Telefono

Messaggio

Accetta l'Informativa sul trattamento dei dati

Condividi l'immobile